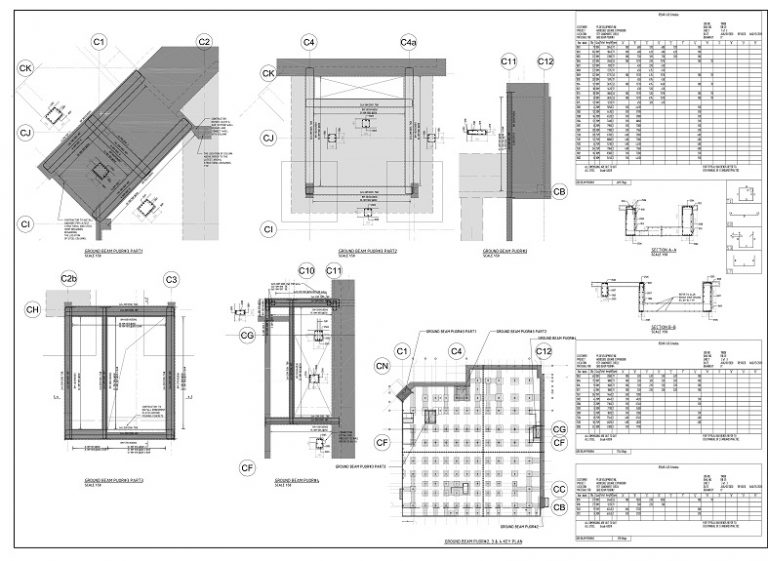
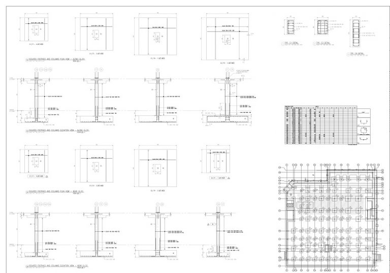
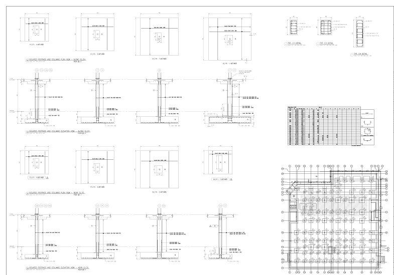
Services Rebar Detailing and Estimate: We provide accurate quantity and timely estimate. We produce high quality rebar shop drawings and help to save the materials. Contact Rebar Fabrication: Fabrication can be done on your site or our shop. The pre-assembled cages such as columns and beams can be delivered to your site on time. Contact Rebar Placing: If you have tight schedule let our site placer help you. We have shift crew work on site 12 hours a day. Contact Concreter Forming: Forming crew and placing crew are team work together on site. They are integrated perfect. Contact